Espace propriétaire
fr

Votre recherche

Nouveauté
Audenge (33980)

4 pièces - 91,80 m²

AUDENGE APPARTEMENT DUPLEX 3 CHAMBRES DANS ENSEMBLE IMMOBILIER NEUF

471 600 €
Ref : 16783
Découvrir le bien

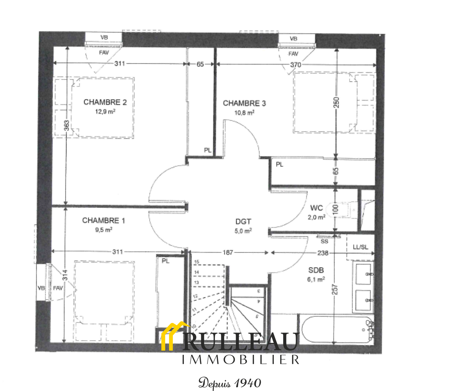
AUDENGE, charmante commune située à 10 km de la station balnéaire d'ANDERNOS LES BAINS, nous vous proposons cet appartement de 91 m2 en duplex. Au RC : il comprend, une entrée, 1 salle d'eau ou cellier,1 wc,  séjour/cuisine donnant sur terrasse de 6 m2. A l'étage : 3 chambres (9.5 m2, 12.9 m2 et 10.8 m2) salle de bains et wc. Jardin de 93.4 m2. 2 places de parking. Pompe à chaleur A/A. A proximité : supermarché, groupe scolaire, collège et bus à 300 m. Pour de plus amples renseignements , contacter Laetitia BLANC  06 75 71 32 51

TRAD_ZEPHYR_Caracteristique TRAD_ZEPHYR_Valeurs
Code postal 33980
Nombre de chambre(s) 3
Nombre de pièces 4
TRAD_ZEPHYR_Caracteristique TRAD_ZEPHYR_Valeurs
Nb de salle de bains 1
Mode de chauffage Pompe à chaleur
Type de chauffage Air pulsé
Format de chauffage AUTRE
Balcon NON
Terrasse OUI
Murs mitoyens 1
TRAD_ZEPHYR_Caracteristique TRAD_ZEPHYR_Valeurs
Copropriété OUI
Lot n° C005
nombre de lots 36
TRAD_ZEPHYR_Caracteristique TRAD_ZEPHYR_Valeurs
Prix de vente honoraires TTC inclus 471 600 €
Rez de chaussée
entrée 5.8 m²

SEJOUR + CUISINE 30.6 m²

SALLE D EAU ET CELLIER 6.4 m²

WC 1.8 m²

rangement 0.90 m²

terrasse 6.0 m²

jardin 93.4 m²

Etage 1
Dégagement 5.0 m²

chambre 9.5 m²

chambre 12.9 m²

chambre 10.8 m²

salle de bain 6.10 m²

WC 2.0 m²

DPE GES
Contacter pour ce bien
L'agence
Téléphone 0556777104
Adresse
26 RUE EDMOND FAULAT 33440 Ambarès-et-Lagrave

* Champ obligatoire

Les informations recueillies sur ce formulaire sont enregistrées dans un fichier informatisé par La Boite Immo agissant comme Sous-traitant du traitement pour la gestion de la clientèle/prospects de l'Agence / du Réseau qui reste Responsable du Traitement de vos Données personnelles. La base légale du traitement repose sur l'intérêt légitime de l'Agence / du Réseau. Elles sont conservées jusqu'à demande de suppression et sont destinées à l'Agence / au Réseau. Conformément à la loi « informatique et libertés », vous disposez des droits d’accès, de rectification, d’effacement, d’opposition, de limitation et de portabilité de vos données. Vous pouvez retirer votre consentement à tout moment en contactant directement l’Agence / Le Réseau. Consultez le site https://cnil.fr/fr pour plus d’informations sur vos droits. Si vous estimez, après avoir contacté l'Agence / le Réseau, que vos droits « Informatique et Libertés » ne sont pas respectés, vous pouvez adresser une réclamation à la CNIL. Nous vous informons de l’existence de la liste d'opposition au démarchage téléphonique « Bloctel », sur laquelle vous pouvez vous inscrire ici : https://www.bloctel.gouv.fr Dans le cadre de la protection des Données personnelles, nous vous invitons à ne pas inscrire de Données sensibles dans le champ de saisie libre.
Ce site est protégé par reCAPTCHA, les Politiques de Confidentialité et les Conditions d'Utilisation de Google s'appliquent.

Découvrir nos outils